Beschrijving
Als u regenwater wenst te gebruiken voor het toilet of de was is het aan te raden een regenwaterfilter te plaatsen. Zo vermijdt u dat slib en vuilresten (zoals bladeren en takken) zich opstapelen in uw regenwaterput, en bent u beschermd tegen de overlast die hieruit zou kunnen volgen, zoals geurhinder en verstoppingen.
Bollaert biedt zelfreinigende regenwaterfilters aan die zeer weinig onderhoud vergen. Als bladeren of vuil zich ophopen in de regenwaterfilter wordt deze automatisch schoongespoeld door de volgende lading water.
Het regenwater in uw regenwaterput vaart er wel bij!
Voordelen
- Geen extra graafwerken – de filter wordt geplaatst in de regenwaterput.
- De filter reinigt zichzelf grotendeels omdat er praktisch geen vuil blijft hangen aan de filter.
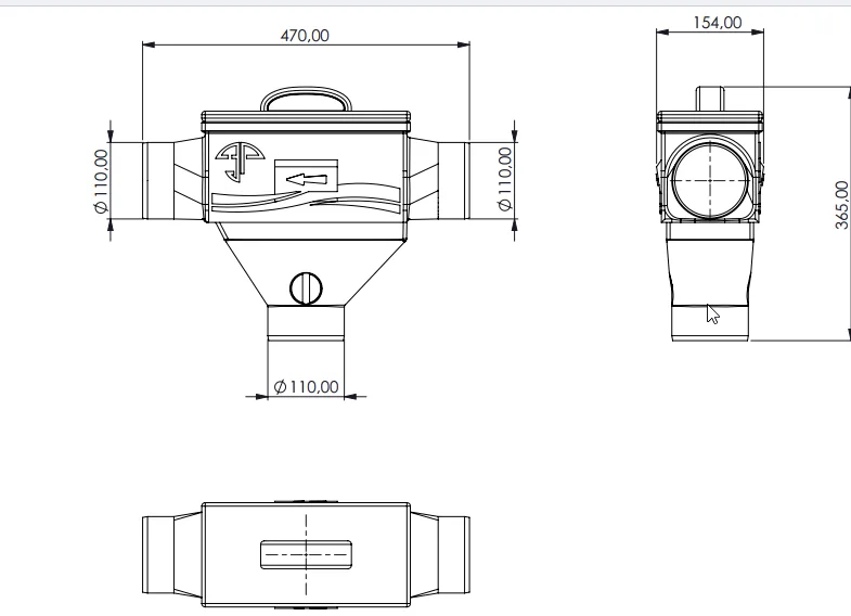
- De mazenfilter kan gemakkelijk worden verwijderd (om te reinigen) via het handvat.
- 2 jaar fabriekswaarborg
Werkingsprincipe

- Het regenwater stroomt binnen en passeert boven de mazen van de filter.
- Het filternet reinigt het regenwater. Het gereinigde regenwater stroomt vertraagd in de regenwatertank.
- Vanwege de gladde oppervlaktestructuur van de filter wordt het vuil snel weggespoeld naar de riolering, via de tank overloop.
| Artikelnummer | toebehoren-water-filter-inbouw-recht-zwart |
|---|---|
| Inloop | 110 mm |
| Overloop | 110 mm |















